KAINOO capture depuis 12 ans la réalité en 3D, pour produire des maquettes BIM
Du monde réel aux jumeaux numériques
Chez Kainoo, nous transformons votre environnement en données exploitables avec une précision millimétrique.
Grâce à notre expertise en Scanning 3D, nous capturons chaque détail de vos bâtiments et infrastructures pour vous offrir des modèles BIM détaillés proches de la réalité, des plans 2D précis, et un archivage fidèle de l’état de vos ouvrages à l’instant T.
 
        
 
    Nos solutions pour vos projets
Notre collaborateur expérimenté pour un scanning de qualité
Relevé rapide et ultra-détaillé de bâtiments, sites industriels et monuments
Acquisition de millions de points en quelques minutes grâce à nos scanners laser FARO
Données exploitables pour la modélisation BIM, l’ingénierie et l’architecture
 
                 
                Modélisation BIM : Une vision complète en 3D
Création de maquettes numériques intelligentes pour la conception et la gestion de projet
Compatibilité avec Revit, Archicad, AutoCAD et autres logiciels BIM
Optimisation de vos flux de travail et gain de temps en phase de conception
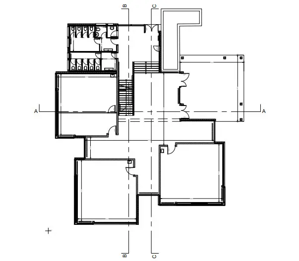
        Plans 2D de haute qualité 
                    Conversion des scans en plans précis : façades, coupes, élévations, plans d’étage, plan de masse
Formats adaptés aux besoins des architectes, bureaux d’études et entreprises du bâtiment
Documents exploitables pour permis de construire, rénovations et études techniques
Archivage de l’État d’un Bâtiment à l’Instant T
Capture et visualisation détaillée de l’état exact d’un ouvrage grâce au Viewer
Outil essentiel pour la rénovation, la maintenance, le suivi de chantier et la documentation patrimoniale
️Créer des photos 360° avec la possibilité de mesurer, pour une analyse précise
Accès aux données à tout moment via le Viewer, pour un suivi fiable et une gestion optimisée
Pourquoi Choisir Kainoo ?
Années d'existences
Projets réalisés
Ingénieurs et experts
Ils nous font confiance
 
                 
                 
                 
                 
                 
                

 
                            